Studio Casa Pandino
Via Umberto I 32
INVIA MAIL
CHIAMACI
0373-19.73.901
Casa Plurifamiliare da Ristrutturare, 234 mq, Vailate
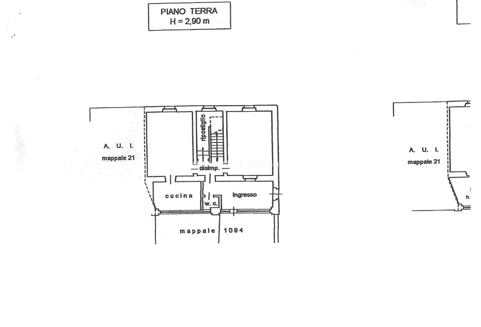
Rif. 605287 - CASA INDIPENDENTE da ristrutturare. Abitazione composta da piano terra soggiorno cucina abitabile camera e bagno con portico e cortile privato. Piano primo due camere con bagno e locale sgombero con balcone. Piano Secondo due locali sottotetto.
In zona centrale con tutti i servizi a portata di mano.
Dettagli
contratto
vendita
tipologia
Casa Plurifamiliare
superficie
234 mq
locali
8
piano
Multipiano
camere
3
bagni
2
cucina
Cucina Abitabile
disponibilità
libero
giardino
Condominiale
balconi
BALCONE
condizioni
da Ristrutturare
anno costruzione
1950
riscaldamento
Autonomo
Mappa