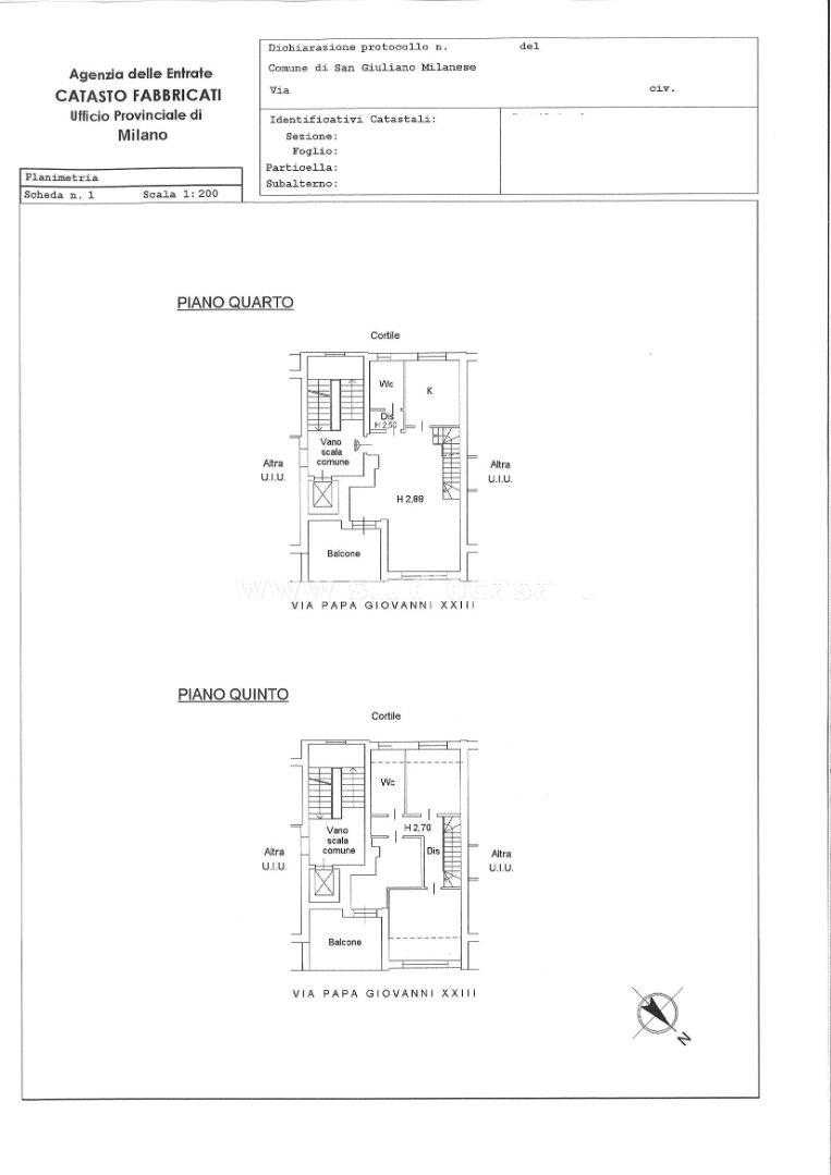
Appartamento , 140 mq, San Giuliano Milanese
Rif. 595478 - Bellissimo appartamento Nuovo mai abitato in pronta consegna cosi composto: ampio e luminoso soggiorno con accesso al primo balcone/terrazzo, cucina separata e abitabile, bagno con doccia, al piano superiore la zona notte è cosi composta 3 camere da letto, il secondo bagno con vasca, il secondo balcone/terrazzo. l'appartamento si trova all'ultimo piano ed è disposto su due livelli ed è estremamente luminoso
nel prezzo richiesto di 360.000 è compreso il box auto con colonnina ricarica elettrica.
il riscaldamento è a pavimento con la regolazione della temperatura autonoma . i serramenti sono in PVC con vetro quadruplo, le tapparelle sono elettriche, già fornite di zanzariere, ecc. L'appartamento è in classe energetica B per chi necessita di un mutuo per l'acquisto di questo immobile beneficia di tassi bancari agevolati in quanto lo stesso rientra nelle categorie case green.
Ti interessa questo immobile? Contattati allo 02.98128447 o passa nel nostro ufficio di Melegnano in via Zuavi 55.
Ti assisteremo in ogni fase della compravendita.
CI PENSIAMO NOI ALLE VOLTURE
CI PENSIAMO NOI AL NOTAIO
CI PENSIAMO NOI AL MUTUO
Affidati a noi riceverai assistenza continua da personale qualificato.
Contattaci per una valutazione gratuita e realistica di mercato del tuo immobile.
Dettagli
contratto
vendita
tipologia
Appartamento
superficie
140 mq
locali
4
piano
Multipiano
camere
3
bagni
2
cucina
Cucina Abitabile
disponibilità
libero
balconi
BALCONE
anno costruzione
2012
altre caratteristiche
DOPPI VETRI
altre caratteristiche
ASCENSORE
spese condominiali
€ 2.500,00
riscaldamento
Centralizzato con Contabilizzazione individuale
Mappa